START VERKOOP
1 november 2025
Na een intensieve voorbereiding en nauwe samenwerking met onze partners, zijn we trots dat de verkoop van 12 appartementen van start is gegaan. Dit project markeert een belangrijke mijlpaal voor the BANQ, waarbij kwaliteit, comfort en duurzaamheid samenkomen in een unieke woonomgeving. Elk appartement is met zorg ontworpen en afgestemd op de wensen van verschillende doelgroepen — van starters tot senioren.
Op deze pagina vindt u alle benodigde documenten om u goed te oriënteren op uw mogelijke nieuwe woning. Denk aan kopersinformatie, plattegronden en het inschrijfformulier. Zo zorgen we ervoor dat u snel en overzichtelijk toegang heeft tot alles wat u nodig heeft voor een succesvolle aankoop.
Beschikbaarheid:
Tekeningen
- Situatietekening
- Overzichtstekening plattegrond totaal
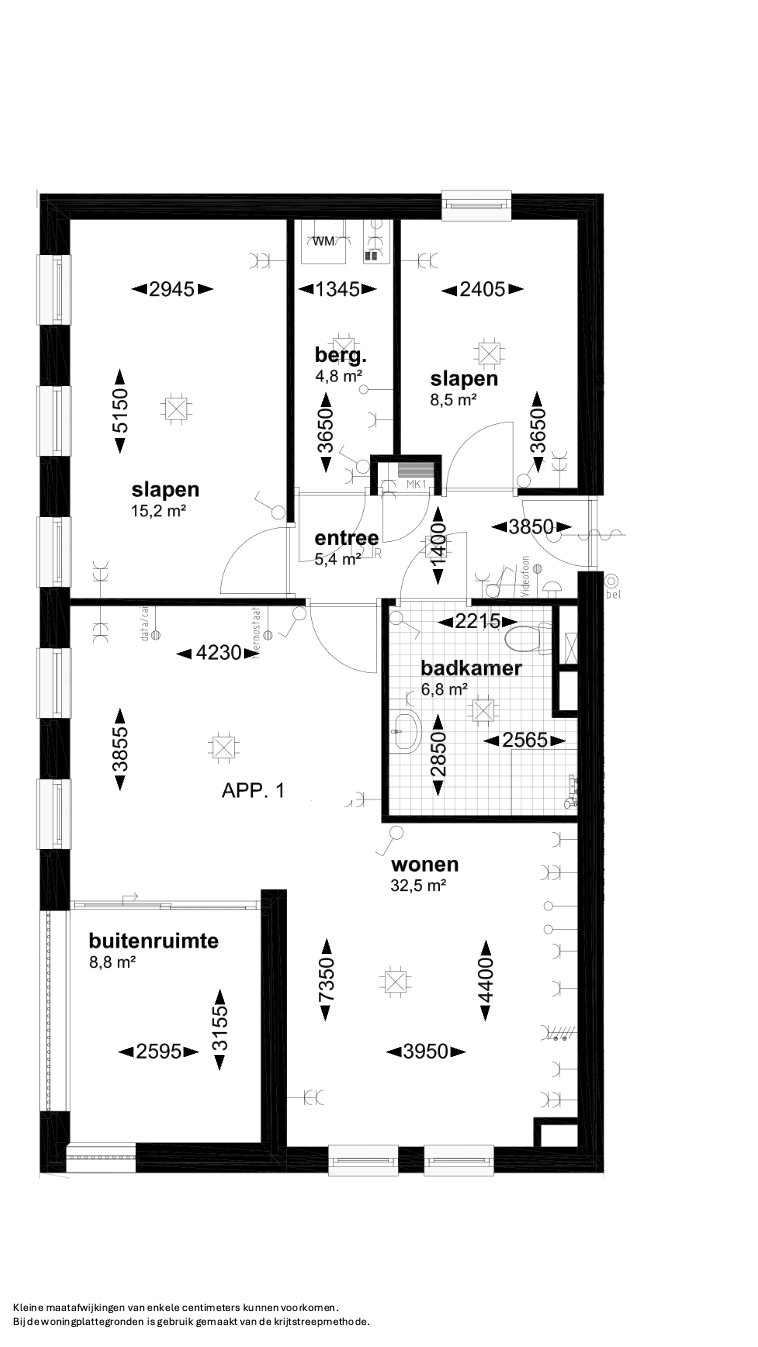
- Plattegrond bouwnummer 01 | senior | begane grond
- Plattegrond bouwnummer 02 | senior | begane grond
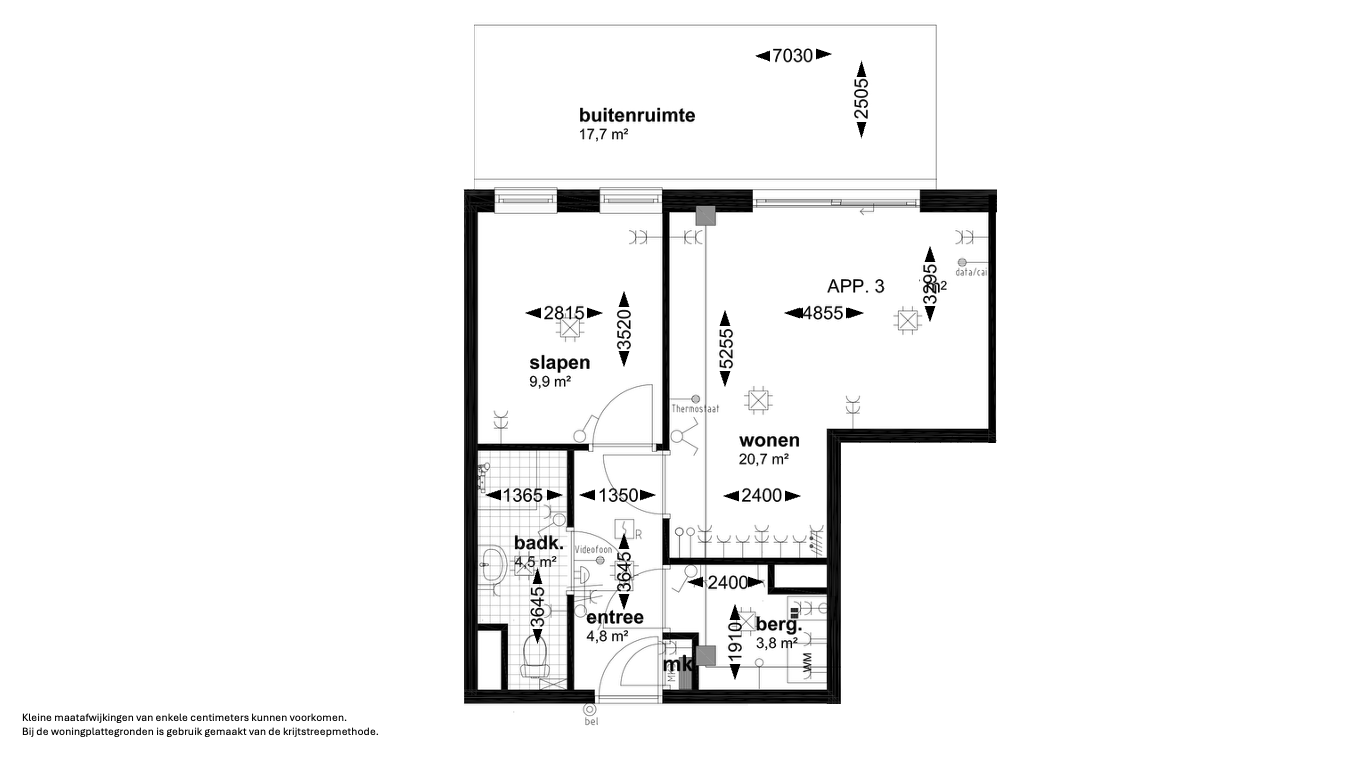
- Plattegrond bouwnummer 03 | starter | begane grond
- Plattegrond bouwnummer 04 | senior | begane grond
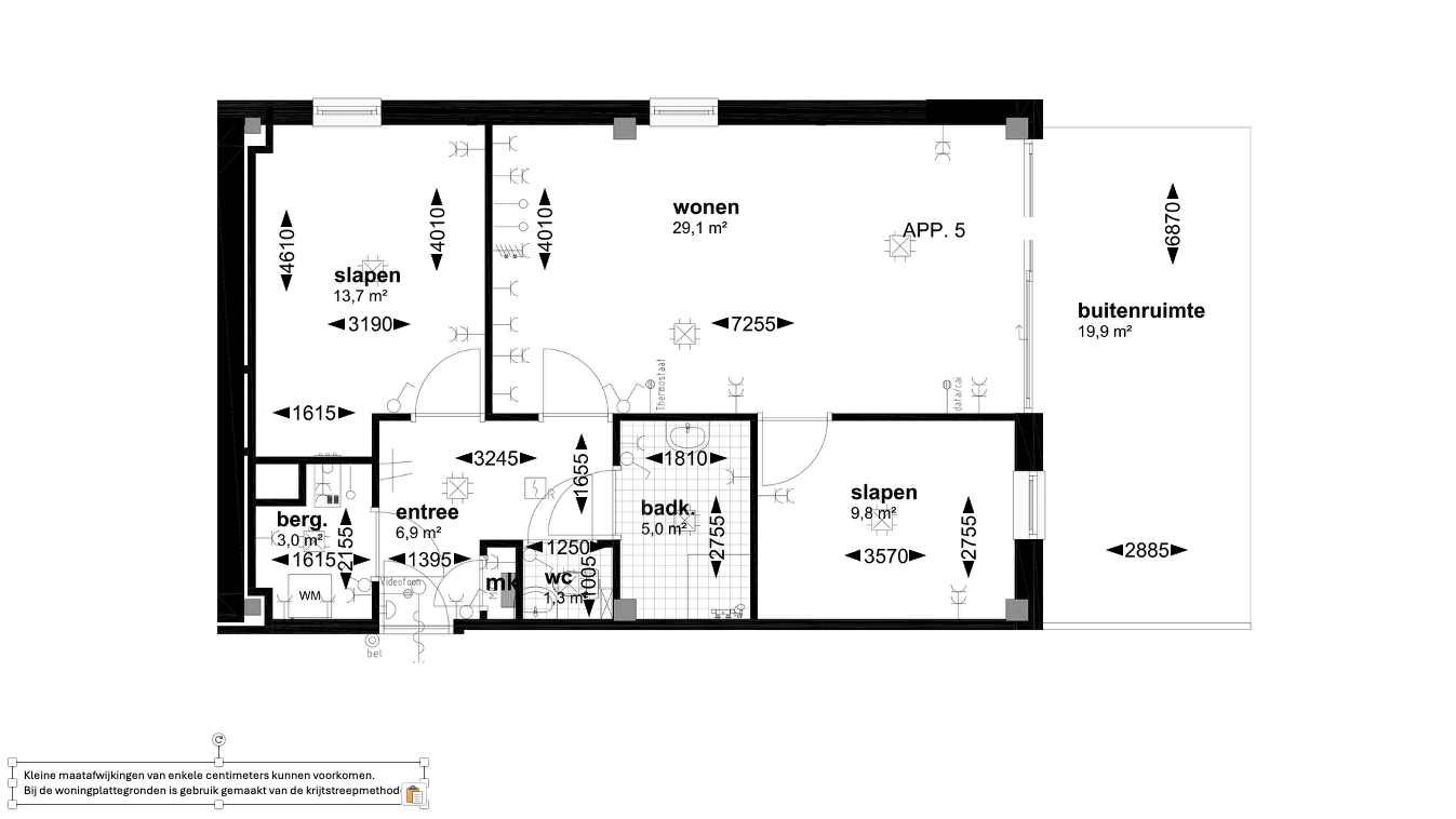
- Plattegrond bouwnummer 05 | senior | begane grond
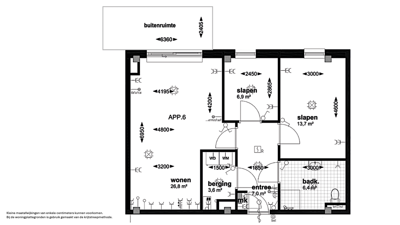
- Plattegrond bouwnummer 06 | senior | 1e verdieping
- Plattegrond bouwnummer 07 | senior | 1e verdieping
- Plattegrond bouwnummer 08 | starter | 1e verdieping
- Plattegrond bouwnummer 09 | starter | 1e verdieping
- Plattegrond bouwnummer 10 | starter | 1e verdieping
- Plattegrond bouwnummer 11 | senior | 1e verdieping
- Plattegrond bouwnummer 12 | starter | 2e verdieping